Недвижимость
Вторичная
Специальные предложения по переуступке на квартиры и коммерческие помещения в сданных домах Группы компаний «ТРЕСТ»
Перейти к выбору
Санкт-Петербург
Выберите ваш город
Санкт-Петербург Калининград
Недвижимость в каком регионе вас интересует?

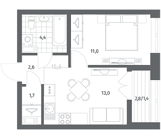
1-комнатная 32.65 м2

1-комнатная 32.65 м2
Акция Акция
Высота потолка 2.75 м
лоджия/балкон
с мебелью
Планировка
на генплане
секция в доме
Квартира №439
Цена по запросу
Проект
Корпус
3
Срок сдачи
4 кв. 2026 г.
Все характеристики
Секция
9
Этаж
3/12
Тип планировки
9-10
Общая площадь , м2
32.65
Жилая площадь , м2
9.95
Площадь кухни , м2
17.15
Распечатать
Квартиры с отделкой
В жилом комплексе NEWПИТЕР мы предлагаем несколько вариантов отделки, чтобы вы могли создать пространство, идеально соответствующее вашему вкусу и потребностям. При этом фиксируется цена и список материалов на момент заключения договора. Доступны два варианта чистовой отделки «под ключ», а так же предчистовая White box.
Подробнее об отделке
Квартиры в NEWПИТЕР
Планировочные решения
Акция
NEWПИТЕР - №4
Цена по запросу
NEWПИТЕР
1-к № 4
Лот 14, Секция 1
Дом сдан
Проспект Ветеранов
20 мин. на транспорте
Ленинградская обл., Ломоносовский район, пос. Новоселье, ул. Невская, д.4
59.9
1-к
1 этаж
Цена по запросу
NEWПИТЕР
1-к № 239
Лот 1.2, Секция 4
Дом сдан
Проспект Ветеранов
20 мин. на транспорте
Ленинградская обл., Ломоносовский район, пос. Новоселье, ул. Невская, д.4
41.9
1-к
2 этаж
Цена по запросу
NEWПИТЕР
1-к № 789
Лот 1.5, Секция 13
Дом сдан
Проспект Ветеранов
20 мин. на транспорте
Ленинградская обл., Ломоносовский район, пос. Новоселье, ул. Невская, д.4
42.3
1-к
7 этаж
Цена по запросу
NEWПИТЕР
1-к № 65
Лот 1.1, Секция 1
Дом сдан
Проспект Ветеранов
20 мин. на транспорте
Ленинградская обл., Ломоносовский район, пос. Новоселье, ул. Невская, д.4
43.5
1-к
7 этаж
Цена по запросу
NEWПИТЕР
1-к № 330
Лот 1.2, Секция 5
Дом сдан
Проспект Ветеранов
20 мин. на транспорте
Ленинградская обл., Ломоносовский район, пос. Новоселье, ул. Невская, д.4
37.5
1-к
2 этаж
Готовая отделка
NEWПИТЕР - №40
Цена по запросу
NEWПИТЕР
1-к № 40
Лот 3, Секция 1
Сдача в 4 кв. 2026 г.
Проспект Ветеранов
20 мин. на транспорте
Ленинградская обл., Ломоносовский район, пос. Новоселье, ул. Невская, д.4
37.88
1-к
7 этаж
Цена по запросу
NEWПИТЕР
1-к № 398
Лот 1.2, Секция 5
Дом сдан
Проспект Ветеранов
20 мин. на транспорте
Ленинградская обл., Ломоносовский район, пос. Новоселье, ул. Невская, д.4
40
1-к
8 этаж
Цена по запросу
NEWПИТЕР
1-к № 155
Лот 1.1, Секция 2
Дом сдан
Проспект Ветеранов
20 мин. на транспорте
Ленинградская обл., Ломоносовский район, пос. Новоселье, ул. Невская, д.4
40.9
1-к
7 этаж
Цена по запросу
NEWПИТЕР
2-к № 352
Лот 3, Секция 7
Сдача в 4 кв. 2026 г.
Проспект Ветеранов
20 мин. на транспорте
Ленинградская обл., Ломоносовский район, пос. Новоселье, ул. Невская, д.4
63.48
2-к
7 этаж
Цена по запросу
NEWПИТЕР
2-к № 97
Лот 4, Секция 2
Сдача в 4 кв. 2026 г.
Проспект Ветеранов
20 мин. на транспорте
Ленинградская обл., Ломоносовский район, пос. Новоселье, ул. Невская, д.4
57.84
2-к
2 этаж
Цена по запросу
NEWПИТЕР
2-к № 131
Лот 3, Секция 3
Сдача в 4 кв. 2026 г.
Проспект Ветеранов
20 мин. на транспорте
Ленинградская обл., Ломоносовский район, пос. Новоселье, ул. Невская, д.4
65.75
2-к
5 этаж
Цена по запросу
NEWПИТЕР
2-к № 653
Лот 3, Секция 11
Сдача в 4 кв. 2026 г.
Проспект Ветеранов
20 мин. на транспорте
Ленинградская обл., Ломоносовский район, пос. Новоселье, ул. Невская, д.4
58.5
2-к
7 этаж
Акция
NEWПИТЕР - №231
Цена по запросу
NEWПИТЕР
2-к № 231
Лот 3, Секция 5
Сдача в 4 кв. 2026 г.
Проспект Ветеранов
20 мин. на транспорте
Ленинградская обл., Ломоносовский район, пос. Новоселье, ул. Невская, д.4
58.4
2-к
3 этаж
Цена по запросу
NEWПИТЕР
2-к № 504
Лот 3, Секция 10
Сдача в 4 кв. 2026 г.
Проспект Ветеранов
20 мин. на транспорте
Ленинградская обл., Ломоносовский район, пос. Новоселье, ул. Невская, д.4
61.4
2-к
2 этаж
Цена по запросу
NEWПИТЕР
2-к № 14
Лот 3, Секция 1
Сдача в 4 кв. 2026 г.
Проспект Ветеранов
20 мин. на транспорте
Ленинградская обл., Ломоносовский район, пос. Новоселье, ул. Невская, д.4
58.11
2-к
3 этаж
Цена по запросу
NEWПИТЕР
2-к № 580
Лот 3, Секция 10
Сдача в 4 кв. 2026 г.
Проспект Ветеранов
20 мин. на транспорте
Ленинградская обл., Ломоносовский район, пос. Новоселье, ул. Невская, д.4
54.92
2-к
9 этаж
Цена по запросу
NEWПИТЕР
3-к № 358
Лот 3, Секция 7
Сдача в 4 кв. 2026 г.
Проспект Ветеранов
20 мин. на транспорте
Ленинградская обл., Ломоносовский район, пос. Новоселье, ул. Невская, д.4
81.67
3-к
7 этаж
Цена по запросу
NEWПИТЕР
3-к № 175
Лот 3, Секция 4
Сдача в 4 кв. 2026 г.
Проспект Ветеранов
20 мин. на транспорте
Ленинградская обл., Ломоносовский район, пос. Новоселье, ул. Невская, д.4
81.92
3-к
2 этаж
Цена по запросу
NEWПИТЕР
3-к № 180
Лот 3, Секция 4
Сдача в 4 кв. 2026 г.
Проспект Ветеранов
20 мин. на транспорте
Ленинградская обл., Ломоносовский район, пос. Новоселье, ул. Невская, д.4
85.39
3-к
2 этаж
Цена по запросу
NEWПИТЕР
3-к № 258
Лот 3, Секция 5
Сдача в 4 кв. 2026 г.
Проспект Ветеранов
20 мин. на транспорте
Ленинградская обл., Ломоносовский район, пос. Новоселье, ул. Невская, д.4
81.65
3-к
7 этаж
Цена по запросу
NEWПИТЕР
3-к № 3
Лот 3, Секция 1
Сдача в 4 кв. 2026 г.
Проспект Ветеранов
20 мин. на транспорте
Ленинградская обл., Ломоносовский район, пос. Новоселье, ул. Невская, д.4
67.33
3-к
2 этаж
Цена по запросу
NEWПИТЕР
3-к № 9
Лот 3, Секция 1
Сдача в 4 кв. 2026 г.
Проспект Ветеранов
20 мин. на транспорте
Ленинградская обл., Ломоносовский район, пос. Новоселье, ул. Невская, д.4
81.67
3-к
3 этаж
Цена по запросу
NEWПИТЕР
3-к № 268
Лот 3, Секция 5
Сдача в 4 кв. 2026 г.
Проспект Ветеранов
20 мин. на транспорте
Ленинградская обл., Ломоносовский район, пос. Новоселье, ул. Невская, д.4
67.25
3-к
9 этаж
Акция
NEWПИТЕР - №516
Цена по запросу
NEWПИТЕР
3-к № 516
Лот 4, Секция 8
Сдача в 4 кв. 2026 г.
Проспект Ветеранов
20 мин. на транспорте
Ленинградская обл., Ломоносовский район, пос. Новоселье, ул. Невская, д.4
74.28
3-к
3 этаж