Недвижимость
Вторичная
Специальные предложения по переуступке на квартиры и коммерческие помещения в сданных домах Группы компаний «ТРЕСТ»
Перейти к выбору
Санкт-Петербург
Выберите ваш город
Санкт-Петербург Калининград
Недвижимость в каком регионе вас интересует?

1-комнатная 34.71 м2

1-комнатная 34.71 м2
Готовая отделка Готовая отделка
Высота потолка 2.75 м
с мебелью
Планировка
на генплане
секция в доме
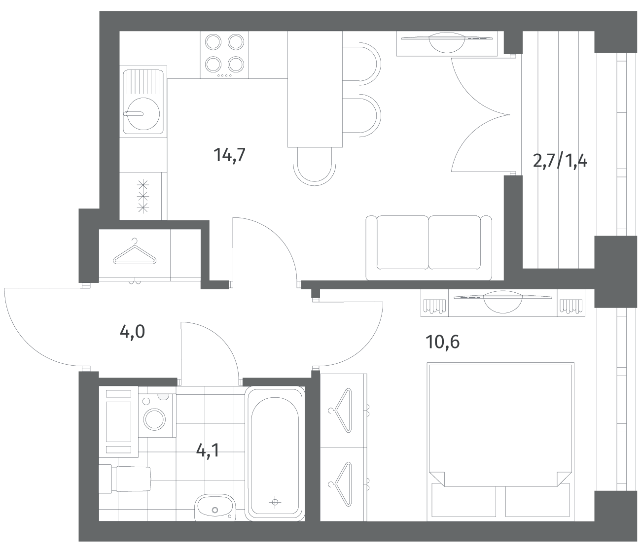
Квартира №703
Цена по запросу
Готовая отделка:
Проект
Корпус
4
Срок сдачи
4 кв. 2026 г.
Все характеристики
Секция
10
Этаж
4/11
Тип планировки
10-4
Общая площадь , м2
34.71
Жилая площадь , м2
10.57
Площадь кухни , м2
14.68
Распечатать
Квартиры с отделкой
Мы предлагаем несколько вариантов чистовой отделки , чтобы вы могли создать пространство, идеально соответствующее вашему вкусу и потребностям. При этом фиксируется цена и список материалов на момент заключения договора.
Подробнее об отделке
Квартиры в Новый Питер
Планировочные решения
Готовая отделка
Новый Питер - №78
Цена по запросу
Новый Питер
1-к № 78
Лот 3, Секция 2
Сдача в 4 кв. 2026 г.
Проспект Ветеранов
20 мин. на транспорте
Ленинградская обл., Ломоносовский район, пос. Новоселье, ул. Невская, д.4
37.89
1-к
5 этаж
Цена по запросу
Новый Питер
1-к № 193
Лот 1.1, Секция 3
Дом сдан
Проспект Ветеранов
20 мин. на транспорте
Ленинградская обл., Ломоносовский район, пос. Новоселье, ул. Невская, д.4
42.5
1-к
2 этаж
Цена по запросу
Новый Питер
1-к № 530
Лот 1.3, Секция 8
Дом сдан
Проспект Ветеранов
20 мин. на транспорте
Ленинградская обл., Ломоносовский район, пос. Новоселье, ул. Невская, д.4
43.9
1-к
2 этаж
Акция
Новый Питер - №54
Цена по запросу
Новый Питер
1-к № 54
Лот 1.1, Секция 1
Дом сдан
Проспект Ветеранов
20 мин. на транспорте
Ленинградская обл., Ломоносовский район, пос. Новоселье, ул. Невская, д.4
43.4
1-к
6 этаж
Цена по запросу
Новый Питер
1-к № 312
Лот 1.2, Секция 5
Дом сдан
Проспект Ветеранов
20 мин. на транспорте
Ленинградская обл., Ломоносовский район, пос. Новоселье, ул. Невская, д.4
35.4
1-к
1 этаж
Цена по запросу
Новый Питер
1-к № 96
Лот 1.1, Секция 2
Дом сдан
Проспект Ветеранов
20 мин. на транспорте
Ленинградская обл., Ломоносовский район, пос. Новоселье, ул. Невская, д.4
40.3
1-к
2 этаж
Готовая отделка
Новый Питер - №26
Цена по запросу
Новый Питер
1-к № 26
Лот 3, Секция 1
Сдача в 4 кв. 2026 г.
Проспект Ветеранов
20 мин. на транспорте
Ленинградская обл., Ломоносовский район, пос. Новоселье, ул. Невская, д.4
37.88
1-к
5 этаж
Готовая отделка
Новый Питер - №377
Цена по запросу
Новый Питер
1-к № 377
Лот 1.2, Секция 5
Дом сдан
Проспект Ветеранов
20 мин. на транспорте
Ленинградская обл., Ломоносовский район, пос. Новоселье, ул. Невская, д.4
39.5
1-к
6 этаж
Цена по запросу
Новый Питер
2-к № 103
Лот 3, Секция 2
Сдача в 4 кв. 2026 г.
Проспект Ветеранов
20 мин. на транспорте
Ленинградская обл., Ломоносовский район, пос. Новоселье, ул. Невская, д.4
58.37
2-к
9 этаж
Цена по запросу
Новый Питер
2-к № 8
Лот 4, Секция 1
Сдача в 4 кв. 2026 г.
Проспект Ветеранов
20 мин. на транспорте
Ленинградская обл., Ломоносовский район, пос. Новоселье, ул. Невская, д.4
58.75
2-к
2 этаж
Цена по запросу
Новый Питер
2-к № 207
Лот 4, Секция 4
Сдача в 4 кв. 2026 г.
Проспект Ветеранов
20 мин. на транспорте
Ленинградская обл., Ломоносовский район, пос. Новоселье, ул. Невская, д.4
57.72
2-к
2 этаж
Цена по запросу
Новый Питер
2-к № 179
Лот 3, Секция 4
Сдача в 4 кв. 2026 г.
Проспект Ветеранов
20 мин. на транспорте
Ленинградская обл., Ломоносовский район, пос. Новоселье, ул. Невская, д.4
58.85
2-к
2 этаж
Готовая отделка
Новый Питер - №578
Цена по запросу
Новый Питер
2-к № 578
Лот 4, Секция 9
Сдача в 4 кв. 2026 г.
Проспект Ветеранов
20 мин. на транспорте
Ленинградская обл., Ломоносовский район, пос. Новоселье, ул. Невская, д.4
59.29
2-к
2 этаж
Цена по запросу
Новый Питер
2-к № 476
Лот 3, Секция 9
Сдача в 4 кв. 2026 г.
Проспект Ветеранов
20 мин. на транспорте
Ленинградская обл., Ломоносовский район, пос. Новоселье, ул. Невская, д.4
57.26
2-к
7 этаж
Цена по запросу
Новый Питер
2-к № 291
Лот 3, Секция 6
Сдача в 4 кв. 2026 г.
Проспект Ветеранов
20 мин. на транспорте
Ленинградская обл., Ломоносовский район, пос. Новоселье, ул. Невская, д.4
58.4
2-к
5 этаж
Цена по запросу
Новый Питер
2-к № 570
Лот 3, Секция 10
Сдача в 4 кв. 2026 г.
Проспект Ветеранов
20 мин. на транспорте
Ленинградская обл., Ломоносовский район, пос. Новоселье, ул. Невская, д.4
62.23
2-к
7 этаж
Цена по запросу
Новый Питер
3-к № 357
Лот 3, Секция 7
Сдача в 4 кв. 2026 г.
Проспект Ветеранов
20 мин. на транспорте
Ленинградская обл., Ломоносовский район, пос. Новоселье, ул. Невская, д.4
66.94
3-к
7 этаж
Цена по запросу
Новый Питер
3-к № 371
Лот 3, Секция 7
Сдача в 4 кв. 2026 г.
Проспект Ветеранов
20 мин. на транспорте
Ленинградская обл., Ломоносовский район, пос. Новоселье, ул. Невская, д.4
66.94
3-к
9 этаж
Цена по запросу
Новый Питер
3-к № 545
Лот 4, Секция 8
Сдача в 4 кв. 2026 г.
Проспект Ветеранов
20 мин. на транспорте
Ленинградская обл., Ломоносовский район, пос. Новоселье, ул. Невская, д.4
74.41
3-к
7 этаж
Цена по запросу
Новый Питер
3-к № 540
Лот 4, Секция 8
Сдача в 4 кв. 2026 г.
Проспект Ветеранов
20 мин. на транспорте
Ленинградская обл., Ломоносовский район, пос. Новоселье, ул. Невская, д.4
74.28
3-к
7 этаж
Цена по запросу
Новый Питер
3-к № 239
Лот 3, Секция 5
Сдача в 4 кв. 2026 г.
Проспект Ветеранов
20 мин. на транспорте
Ленинградская обл., Ломоносовский район, пос. Новоселье, ул. Невская, д.4
66.97
3-к
4 этаж
Цена по запросу
Новый Питер
3-к № 241
Лот 3, Секция 5
Сдача в 4 кв. 2026 г.
Проспект Ветеранов
20 мин. на транспорте
Ленинградская обл., Ломоносовский район, пос. Новоселье, ул. Невская, д.4
78.82
3-к
5 этаж
Цена по запросу
Новый Питер
3-к № 38
Лот 3, Секция 1
Сдача в 4 кв. 2026 г.
Проспект Ветеранов
20 мин. на транспорте
Ленинградская обл., Ломоносовский район, пос. Новоселье, ул. Невская, д.4
66.85
3-к
7 этаж
Цена по запросу
Новый Питер
3-к № 52
Лот 3, Секция 1
Сдача в 4 кв. 2026 г.
Проспект Ветеранов
20 мин. на транспорте
Ленинградская обл., Ломоносовский район, пос. Новоселье, ул. Невская, д.4
66.85
3-к
9 этаж