Недвижимость
Вторичная
Специальные предложения по переуступке на квартиры и коммерческие помещения в сданных домах Группы компаний «ТРЕСТ»
Перейти к выбору
Санкт-Петербург
Выберите ваш город
Санкт-Петербург Калининград
Недвижимость в каком регионе вас интересует?
Квартиры

Квартиры

выбрать недвижимость
Санкт-Петербург
Калининград
Показать фильтры
Фильтры
сбросить фильтры
Тип недвижимости
Квартира
Коммерческое помещение
Паркинг
Кладовые
Жилой комплекс
Речной квартал
Парусная 1
NEWПИТЕР
Наука
Листва
Комнатность
1 - КОМНАТНЫЕ
2 - КОМНАТНЫЕ
3 - КОМНАТНЫЕ
4 - КОМНАТНЫЕ
Студия
Лот/Корпус/Очередь
Секция
Этаж от
Этаж до
1
2
3
4
5
6
7
8
9
10
11
12
13
14
15
16
17
18
19
20
21
22
23
1
2
3
4
5
6
7
8
9
10
11
12
13
14
15
16
17
18
19
20
21
22
23
Акция
да
Готовая отделка
Ваниль
Шоколад
Цена от
Цена до
6 097 000 ₽ 46 526 000 ₽
Общая площадь от
Общая площадь до
23.6
м2
116.7
м2
Площадь кухни от
Площадь кухни до
5
м2
40.4
м2
Срок сдачи
Дом сдан
4 кв. 2026 г.
4 кв. 2028 г.
Особенности
2 и более санузла
Высокий потолок
Высота потолка 2,9 м
Высота потолка 2.72 м
Высота потолка 2.75 м
Высота потолка выше 3 м
гардеробная
кладовая
Кухня-гостиная
лоджия/балкон
постирочная
С террасой
Тип сделки
Вторичка
Вторичка ПИФ
Переуступка
СБРОСИТЬ ФИЛЬТРЫ
Найдено:1415 ВАРИАНТОВ
Сортировать:
По названию ЖК
По названию ЖК
По комнатности
По площади квартиры
По площади кухни
По этажу
По цене
По сроку сдачи
Выводить:
По 12
По 12
По 24
По 48

Квартиры в Санкт-Петербурге | ГК «ТРЕСТ» Квартиры в Санкт-Петербурге | ГК «ТРЕСТ»
Планировка Жилой комплекс Лот/Корпус/Очередь Комнатность Площадь квартиры Площадь кухни Этаж Стоимость Срок сдачи
Парусная 1
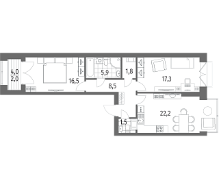
3-к № 558
Приморская
Санкт-Петербург, ул. Шкиперский проток, д. 19, литера А
Корпус 2.3 3-комнатная 91.5 м² 24.1 м² 1
Цена по запросу
Узнать цену
4 кв. 2026 г.
Парусная 1
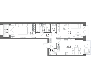
2-к № 557
Приморская
Санкт-Петербург, ул. Шкиперский проток, д. 19, литера А
Корпус 2.3 2-комнатная 70.1 м² 18.1 м² 1
Цена по запросу
Узнать цену
4 кв. 2026 г.
Парусная 1
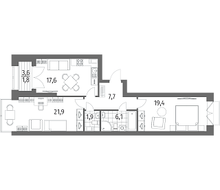
3-к № 551
Приморская
Санкт-Петербург, ул. Шкиперский проток, д. 19, литера А
Корпус 2.2 3-комнатная 111.1 м² 10.9 м² 6
Цена по запросу
Узнать цену
4 кв. 2026 г.
Парусная 1
3-к № 509
Приморская
Санкт-Петербург, ул. Шкиперский проток, д. 19, литера А
Корпус 2.2 3-комнатная 68.9 м² 8.6 м² 5
Цена по запросу
Узнать цену
4 кв. 2026 г.
Парусная 1
3-к № 540
Приморская
Санкт-Петербург, ул. Шкиперский проток, д. 19, литера А
Корпус 2.2 3-комнатная 73.3 м² 5.3 м² 4
Цена по запросу
Узнать цену
4 кв. 2026 г.
Парусная 1
2-к № 531
Приморская
Санкт-Петербург, ул. Шкиперский проток, д. 19, литера А
Корпус 2.2 2-комнатная 63.5 м² 17.9 м² 3
Цена по запросу
Узнать цену
4 кв. 2026 г.
Парусная 1
2-к № 526
Приморская
Санкт-Петербург, ул. Шкиперский проток, д. 19, литера А
Корпус 2.2 2-комнатная 65.7 м² 16.1 м² 2
Цена по запросу
Узнать цену
4 кв. 2026 г.
Парусная 1
2-к № 524
Приморская
Санкт-Петербург, ул. Шкиперский проток, д. 19, литера А
Корпус 2.2 2-комнатная 64.6 м² 17.9 м² 2
Цена по запросу
Узнать цену
4 кв. 2026 г.
Парусная 1
3-к № 494
Приморская
Санкт-Петербург, ул. Шкиперский проток, д. 19, литера А
Корпус 2.2 3-комнатная 68.9 м² 8.6 м² 2
Цена по запросу
Узнать цену
4 кв. 2026 г.
Парусная 1
1-к № 523
Приморская
Санкт-Петербург, ул. Шкиперский проток, д. 19, литера А
Корпус 2.2 1-комнатная 50 м² 17.3 м² 1
Цена по запросу
Узнать цену
4 кв. 2026 г.
Парусная 1
2-к № 521
Приморская
Санкт-Петербург, ул. Шкиперский проток, д. 19, литера А
Корпус 2.2 2-комнатная 95.9 м² 34.6 м² 1
Цена по запросу
Узнать цену
4 кв. 2026 г.
Парусная 1
2-к № 519
Приморская
Санкт-Петербург, ул. Шкиперский проток, д. 19, литера А
Корпус 2.2 2-комнатная 98.2 м² 32 м² 1
Цена по запросу
Узнать цену
4 кв. 2026 г.
Цена по запросу
Парусная 1
3-к № 558
Корпус 2.3, Секция 1
Сдача в 4 кв. 2026 г.
Приморская
10 мин. на транспорте
Санкт-Петербург, ул. Шкиперский проток, д. 19, литера А
91.5
3-к
1 этаж
Цена по запросу
Парусная 1
2-к № 557
Корпус 2.3, Секция 1
Сдача в 4 кв. 2026 г.
Приморская
10 мин. на транспорте
Санкт-Петербург, ул. Шкиперский проток, д. 19, литера А
70.1
2-к
1 этаж
Цена по запросу
Парусная 1
3-к № 551
Корпус 2.2, Секция 2
Сдача в 4 кв. 2026 г.
Приморская
10 мин. на транспорте
Санкт-Петербург, ул. Шкиперский проток, д. 19, литера А
111.1
3-к
6 этаж
Цена по запросу
Парусная 1
3-к № 509
Корпус 2.2, Секция 1
Сдача в 4 кв. 2026 г.
Приморская
10 мин. на транспорте
Санкт-Петербург, ул. Шкиперский проток, д. 19, литера А
68.9
3-к
5 этаж
Цена по запросу
Парусная 1
3-к № 540
Корпус 2.2, Секция 2
Сдача в 4 кв. 2026 г.
Приморская
10 мин. на транспорте
Санкт-Петербург, ул. Шкиперский проток, д. 19, литера А
73.3
3-к
4 этаж
Цена по запросу
Парусная 1
2-к № 531
Корпус 2.2, Секция 2
Сдача в 4 кв. 2026 г.
Приморская
10 мин. на транспорте
Санкт-Петербург, ул. Шкиперский проток, д. 19, литера А
63.5
2-к
3 этаж
Цена по запросу
Парусная 1
2-к № 526
Корпус 2.2, Секция 2
Сдача в 4 кв. 2026 г.
Приморская
10 мин. на транспорте
Санкт-Петербург, ул. Шкиперский проток, д. 19, литера А
65.7
2-к
2 этаж
Цена по запросу
Парусная 1
2-к № 524
Корпус 2.2, Секция 2
Сдача в 4 кв. 2026 г.
Приморская
10 мин. на транспорте
Санкт-Петербург, ул. Шкиперский проток, д. 19, литера А
64.6
2-к
2 этаж
Цена по запросу
Парусная 1
3-к № 494
Корпус 2.2, Секция 1
Сдача в 4 кв. 2026 г.
Приморская
10 мин. на транспорте
Санкт-Петербург, ул. Шкиперский проток, д. 19, литера А
68.9
3-к
2 этаж
Цена по запросу
Парусная 1
1-к № 523
Корпус 2.2, Секция 2
Сдача в 4 кв. 2026 г.
Приморская
10 мин. на транспорте
Санкт-Петербург, ул. Шкиперский проток, д. 19, литера А
50
1-к
1 этаж
Цена по запросу
Парусная 1
2-к № 521
Корпус 2.2, Секция 2
Сдача в 4 кв. 2026 г.
Приморская
10 мин. на транспорте
Санкт-Петербург, ул. Шкиперский проток, д. 19, литера А
95.9
2-к
1 этаж
Цена по запросу
Парусная 1
2-к № 519
Корпус 2.2, Секция 2
Сдача в 4 кв. 2026 г.
Приморская
10 мин. на транспорте
Санкт-Петербург, ул. Шкиперский проток, д. 19, литера А
98.2
2-к
1 этаж