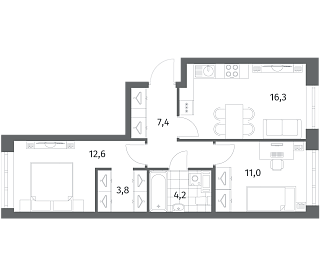
2-комнатная 50.9 м2
2-комнатная 50.9 м2
        Высота потолка 2.75 м
                                
                    Квартира №432                
                
                                    Цена по запросу
                            
            
            
            
            
    
                Дополнительные возможности:            
            
        | Проект | |
| Корпус | 4 | 
| Срок сдачи | 
                                                                            Дом сдан                                                                     | 
Все характеристики
                        | Секция | 7 | 
| Этаж | 
                                                                                                    3/11                                                                                             | 
| Тип планировки | 7-3 | 
| Общая площадь                                                , м2 | 50.9 | 
| Жилая площадь                                                , м2 | 23.29 | 
| Площадь кухни                                                , м2 | 15.33 | 
                
                    
                    Распечатать                
                
        
                    
                    Поделиться                    
                    
                
            
                                        Квартиры с отделкой                                    
                                                                                                    
                                        В жилом комплексе NEWПИТЕР мы предлагаем несколько вариантов отделки, чтобы вы могли создать пространство, идеально соответствующее вашему вкусу и потребностям. При этом фиксируется цена и список материалов на момент заключения договора. Доступны два варианта чистовой отделки «под ключ», а так же предчистовая «White box».                                    
                                                                                                    
                                        Подробнее об отделке
                                    
                                                            
	
	
	
	
					Цена по запросу			
			
							
							
	
			
							
	
	
			
					NEWПИТЕР				
										
																		1-к
																						№ 193									
					
	
	
		Лот 1.1, Секция 3	
			
			Дом сдан		
	
		
		
					Проспект Ветеранов				
										               	
											20 мин.
																на транспорте									
					
			Ленинградская обл., Ломоносовский район, пос. Новоселье, ул. Невская, д.4		
	
			
					42.5				
										
											1-к
									
										
					2 этаж
				
					
	
	
	
	
					Цена по запросу			
			
							
							
	
			
							
	
	
			
					NEWПИТЕР				
										
																		1-к
																						№ 4									
					
	
	
		Лот 1.1, Секция 1	
			
			Дом сдан		
	
		
		
					Проспект Ветеранов				
										               	
											20 мин.
																на транспорте									
					
			Ленинградская обл., Ломоносовский район, пос. Новоселье, ул. Невская, д.4		
	
			
					35.3				
										
											1-к
									
										
					1 этаж
				
					
	
	
	
	
					Цена по запросу			
			
							
							
	
			
							
	
	
			
					NEWПИТЕР				
										
																		1-к
																						№ 284									
					
	
	
		Лот 1.2, Секция 4	
			
			Дом сдан		
	
		
		
					Проспект Ветеранов				
										               	
											20 мин.
																на транспорте									
					
			Ленинградская обл., Ломоносовский район, пос. Новоселье, ул. Невская, д.4		
	
			
					43.6				
										
											1-к
									
										
					6 этаж
				
					
	
	
	
	
					Цена по запросу			
			
							
							
	
			
							
	
	
			
					NEWПИТЕР				
										
																		1-к
																						№ 71									
					
	
	
		Лот 1.1, Секция 1	
			
			Дом сдан		
	
		
		
					Проспект Ветеранов				
										               	
											20 мин.
																на транспорте									
					
			Ленинградская обл., Ломоносовский район, пос. Новоселье, ул. Невская, д.4		
	
			
					36.7				
										
											1-к
									
										
					8 этаж
				
					
	
	
	
	
					Цена по запросу			
			
							
							
	
			
							
	
	
			
					NEWПИТЕР				
										
																		1-к
																						№ 329									
					
	
	
		Лот 1.2, Секция 5	
			
			Дом сдан		
	
		
		
					Проспект Ветеранов				
										               	
											20 мин.
																на транспорте									
					
			Ленинградская обл., Ломоносовский район, пос. Новоселье, ул. Невская, д.4		
	
			
					39.6				
										
											1-к
									
										
					2 этаж
				
					
	
	
	
	
					Цена по запросу			
			
							
							
	
			
							
	
	
			
					NEWПИТЕР				
										
																		1-к
																						№ 619									
					
	
	
		Лот 1.4, Секция 9	
			
			Дом сдан		
	
		
		
					Проспект Ветеранов				
										               	
											20 мин.
																на транспорте									
					
			Ленинградская обл., Ломоносовский район, пос. Новоселье, ул. Невская, д.4		
	
			
					41.9				
										
											1-к
									
										
					7 этаж
				
					
	
	
	
	
					Цена по запросу			
			
							
							
	
			
							
	
	
			
					NEWПИТЕР				
										
																		1-к
																						№ 398									
					
	
	
		Лот 1.2, Секция 5	
			
			Дом сдан		
	
		
		
					Проспект Ветеранов				
										               	
											20 мин.
																на транспорте									
					
			Ленинградская обл., Ломоносовский район, пос. Новоселье, ул. Невская, д.4		
	
			
					40				
										
											1-к
									
										
					8 этаж
				
					
	
	
	
	
					Цена по запросу			
			
							
							
	
			
							
	
	
			
					NEWПИТЕР				
										
																		1-к
																						№ 155									
					
	
	
		Лот 1.1, Секция 2	
			
			Дом сдан		
	
		
		
					Проспект Ветеранов				
										               	
											20 мин.
																на транспорте									
					
			Ленинградская обл., Ломоносовский район, пос. Новоселье, ул. Невская, д.4		
	
			
					40.9				
										
											1-к
									
										
					7 этаж
				
					
	
	
	
	
					Цена по запросу			
			
							
							
	
			
							
	
	
			
					NEWПИТЕР				
										
																		2-к
																						№ 113									
					
	
	
		Лот 3, Секция 3	
			
			Дом сдан		
	
		
		
					Проспект Ветеранов				
										               	
											20 мин.
																на транспорте									
					
			Ленинградская обл., Ломоносовский район, пос. Новоселье, ул. Невская, д.4		
	
			
					57.74				
										
											2-к
									
										
					3 этаж
				
					
	
	
	
	
					Цена по запросу			
			
							
							
	
			
							
	
	
			
					NEWПИТЕР				
										
																		2-к
																						№ 382									
					
	
	
		Лот 3, Секция 8	
			
			Дом сдан		
	
		
		
					Проспект Ветеранов				
										               	
											20 мин.
																на транспорте									
					
			Ленинградская обл., Ломоносовский район, пос. Новоселье, ул. Невская, д.4		
	
			
					58.37				
										
											2-к
									
										
					3 этаж
				
					
	
	
	
	
					Цена по запросу			
			
							
							
	
			
							
	
	
			
					NEWПИТЕР				
										
																		2-к
																						№ 649									
					
	
	
		Лот 3, Секция 11	
			
			Дом сдан		
	
		
		
					Проспект Ветеранов				
										               	
											20 мин.
																на транспорте									
					
			Ленинградская обл., Ломоносовский район, пос. Новоселье, ул. Невская, д.4		
	
			
					45.2				
										
											2-к
									
										
					6 этаж
				
					
	
	
	
	
					Цена по запросу			
			
							
							
	
			
							
	
	
			
					NEWПИТЕР				
										
																		2-к
																						№ 690									
					
	
	
		Лот 4, Секция 10	
			
			Дом сдан		
	
		
		
					Проспект Ветеранов				
										               	
											20 мин.
																на транспорте									
					
			Ленинградская обл., Ломоносовский район, пос. Новоселье, ул. Невская, д.4		
	
			
					52.99				
										
											2-к
									
										
					3 этаж
				
					
	
	
	
	
					Цена по запросу			
			
							
							
	
			
							
	
	
			
					NEWПИТЕР				
										
																		2-к
																						№ 231									
					
	
	
		Лот 3, Секция 5	
			
			Дом сдан		
	
		
		
					Проспект Ветеранов				
										               	
											20 мин.
																на транспорте									
					
			Ленинградская обл., Ломоносовский район, пос. Новоселье, ул. Невская, д.4		
	
			
					58.4				
										
											2-к
									
										
					3 этаж
				
					
	
	
	
	
					Цена по запросу			
			
							
							
	
			
							
	
	
			
					NEWПИТЕР				
										
																		2-к
																						№ 320									
					
	
	
		Лот 4, Секция 5	
			
			Дом сдан		
	
		
		
					Проспект Ветеранов				
										               	
											20 мин.
																на транспорте									
					
			Ленинградская обл., Ломоносовский район, пос. Новоселье, ул. Невская, д.4		
	
			
					58.31				
										
											2-к
									
										
					5 этаж
				
					
	
	
	
	
					Цена по запросу			
			
							
							
	
			
							
	
	
			
					NEWПИТЕР				
										
																		2-к
																						№ 588									
					
	
	
		Лот 4, Секция 9	
			
			Дом сдан		
	
		
		
					Проспект Ветеранов				
										               	
											20 мин.
																на транспорте									
					
			Ленинградская обл., Ломоносовский район, пос. Новоселье, ул. Невская, д.4		
	
			
					55.3				
										
											2-к
									
										
					3 этаж
				
					
	
	
	
	
					Цена по запросу			
			
							
							
	
			
							
	
	
			
					NEWПИТЕР				
										
																		2-к
																						№ 561									
					
	
	
		Лот 3, Секция 10	
			
			Дом сдан		
	
		
		
					Проспект Ветеранов				
										               	
											20 мин.
																на транспорте									
					
			Ленинградская обл., Ломоносовский район, пос. Новоселье, ул. Невская, д.4		
	
			
					54.66				
										
											2-к
									
										
					7 этаж
				
					
	
	
	
	
					Цена по запросу			
			
							
							
	
			
							
	
	
			
					NEWПИТЕР				
										
																		3-к
																						№ 343									
					
	
	
		Лот 3, Секция 7	
			
			Дом сдан		
	
		
		
					Проспект Ветеранов				
										               	
											20 мин.
																на транспорте									
					
			Ленинградская обл., Ломоносовский район, пос. Новоселье, ул. Невская, д.4		
	
			
					66.94				
										
											3-к
									
										
					5 этаж
				
					
	
	
	
	
					Цена по запросу			
			
							
							
	
			
							
	
	
			
					NEWПИТЕР				
										
																		3-к
																						№ 92									
					
	
	
		Лот 3, Секция 2	
			
			Дом сдан		
	
		
		
					Проспект Ветеранов				
										               	
											20 мин.
																на транспорте									
					
			Ленинградская обл., Ломоносовский район, пос. Новоселье, ул. Невская, д.4		
	
			
					80.7				
										
											3-к
									
										
					7 этаж
				
					
	
	
	
	
					Цена по запросу			
			
							
							
	
			
							
	
	
			
					NEWПИТЕР				
										
																		3-к
																						№ 99									
					
	
	
		Лот 3, Секция 2	
			
			Дом сдан		
	
		
		
					Проспект Ветеранов				
										               	
											20 мин.
																на транспорте									
					
			Ленинградская обл., Ломоносовский район, пос. Новоселье, ул. Невская, д.4		
	
			
					77.13				
										
											3-к
									
										
					9 этаж
				
					
	
	
	
	
					Цена по запросу			
			
							
							
	
			
							
	
	
			
					NEWПИТЕР				
										
																		3-к
																						№ 239									
					
	
	
		Лот 4, Секция 4	
			
			Дом сдан		
	
		
		
					Проспект Ветеранов				
										               	
											20 мин.
																на транспорте									
					
			Ленинградская обл., Ломоносовский район, пос. Новоселье, ул. Невская, д.4		
	
			
					74.94				
										
											3-к
									
										
					5 этаж
				
					
	
	
	
	
					Цена по запросу			
			
							
							
	
			
							
	
	
			
					NEWПИТЕР				
										
																		3-к
																						№ 246									
					
	
	
		Лот 3, Секция 5	
			
			Дом сдан		
	
		
		
					Проспект Ветеранов				
										               	
											20 мин.
																на транспорте									
					
			Ленинградская обл., Ломоносовский район, пос. Новоселье, ул. Невская, д.4		
	
			
					81.65				
										
											3-к
									
										
					5 этаж
				
					
	
	
	
	
					Цена по запросу			
			
							
							
	
			
							
	
	
			
					NEWПИТЕР				
										
																		3-к
																						№ 253									
					
	
	
		Лот 3, Секция 5	
			
			Дом сдан		
	
		
		
					Проспект Ветеранов				
										               	
											20 мин.
																на транспорте									
					
			Ленинградская обл., Ломоносовский район, пос. Новоселье, ул. Невская, д.4		
	
			
					78.82				
										
											3-к
									
										
					7 этаж
				
					
	
	
	
	
					Цена по запросу			
			
							
							
	
			
							
	
	
			
					NEWПИТЕР				
										
																		3-к
																						№ 516									
					
	
	
		Лот 4, Секция 8	
			
			Дом сдан		
	
		
		
					Проспект Ветеранов				
										               	
											20 мин.
																на транспорте									
					
			Ленинградская обл., Ломоносовский район, пос. Новоселье, ул. Невская, д.4		
	
			
					74.28				
										
											3-к
									
										
					3 этаж
				
					
	
	
	
	
					Цена по запросу			
			
							
							
	
			
							
	
	
			
					NEWПИТЕР				
										
																		3-к
																						№ 330									
					
	
	
		Лот 3, Секция 7	
			
			Дом сдан		
	
		
		
					Проспект Ветеранов				
										               	
											20 мин.
																на транспорте									
					
			Ленинградская обл., Ломоносовский район, пос. Новоселье, ул. Невская, д.4		
	
			
					81.67				
										
											3-к
									
										
					3 этаж
				
					 
                                                                             
                                                                             
                                                                             
                                                                             
                                                                             
                                                                             
                                                                             
                                                                             
                         
                         
                         
                                                             
                                                             
                                                             
			 
			 
			 
			 
			 
			 
			 
			 
			 
			 
			 
			 
			 
			 
			 
			 
			 
			 
			 
			 
			 
			 
			