Недвижимость
Вторичная
Специальные предложения по переуступке на квартиры и коммерческие помещения в сданных домах Группы компаний «ТРЕСТ»
Перейти к выбору
Санкт-Петербург
Выберите ваш город
Санкт-Петербург Калининград
Недвижимость в каком регионе вас интересует?

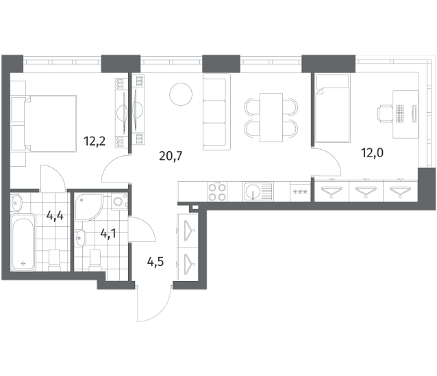
2-комнатная 57.83 м2

2-комнатная 57.83 м2
Готовая отделка Готовая отделка
Высота потолка 2.75 м
Кухня-гостиная
с мебелью
Планировка
на генплане
секция в доме
Квартира №571
Цена по запросу
Готовая отделка:
Проект
Корпус
4
Срок сдачи
4 кв. 2026 г.
Все характеристики
Секция
9
Этаж
2/11
Тип планировки
9-2
Общая площадь , м2
57.83
Жилая площадь , м2
24.26
Площадь кухни , м2
20.65
Распечатать
Квартиры с отделкой
В жилом комплексе NEWПИТЕР мы предлагаем несколько вариантов отделки, чтобы вы могли создать пространство, идеально соответствующее вашему вкусу и потребностям. При этом фиксируется цена и список материалов на момент заключения договора. Доступны два варианта чистовой отделки «под ключ», а так же предчистовая White box.
Подробнее об отделке
Квартиры в Новый Питер
Планировочные решения
Цена по запросу
Новый Питер
1-к № 5
Лот 4, Секция 1
Сдача в 4 кв. 2026 г.
Проспект Ветеранов
20 мин. на транспорте
Ленинградская обл., Ломоносовский район, пос. Новоселье, ул. Невская, д.4
36.74
1-к
2 этаж
Готовая отделка
Новый Питер - №638
Цена по запросу
Новый Питер
1-к № 638
Лот 3, Секция 11
Сдача в 4 кв. 2026 г.
Проспект Ветеранов
20 мин. на транспорте
Ленинградская обл., Ломоносовский район, пос. Новоселье, ул. Невская, д.4
33.57
1-к
5 этаж
Цена по запросу
Новый Питер
1-к № 210
Лот 4, Секция 4
Сдача в 4 кв. 2026 г.
Проспект Ветеранов
20 мин. на транспорте
Ленинградская обл., Ломоносовский район, пос. Новоселье, ул. Невская, д.4
38.17
1-к
2 этаж
Цена по запросу
Новый Питер
1-к № 576
Лот 4, Секция 9
Сдача в 4 кв. 2026 г.
Проспект Ветеранов
20 мин. на транспорте
Ленинградская обл., Ломоносовский район, пос. Новоселье, ул. Невская, д.4
38.17
1-к
2 этаж
Цена по запросу
Новый Питер
1-к № 105
Лот 4, Секция 2
Сдача в 4 кв. 2026 г.
Проспект Ветеранов
20 мин. на транспорте
Ленинградская обл., Ломоносовский район, пос. Новоселье, ул. Невская, д.4
37.67
1-к
3 этаж
Цена по запросу
Новый Питер
1-к № 305
Лот 4, Секция 5
Сдача в 4 кв. 2026 г.
Проспект Ветеранов
20 мин. на транспорте
Ленинградская обл., Ломоносовский район, пос. Новоселье, ул. Невская, д.4
36.49
1-к
3 этаж
Готовая отделка
Новый Питер - №763
Цена по запросу
Новый Питер
1-к № 763
Лот 4, Секция 10
Сдача в 4 кв. 2026 г.
Проспект Ветеранов
20 мин. на транспорте
Ленинградская обл., Ломоносовский район, пос. Новоселье, ул. Невская, д.4
34.71
1-к
10 этаж
Готовая отделка
Новый Питер - №582
Цена по запросу
Новый Питер
1-к № 582
Лот 3, Секция 10
Сдача в 4 кв. 2026 г.
Проспект Ветеранов
20 мин. на транспорте
Ленинградская обл., Ломоносовский район, пос. Новоселье, ул. Невская, д.4
36.66
1-к
9 этаж
Цена по запросу
Новый Питер
2-к № 614
Лот 3, Секция 11
Сдача в 4 кв. 2026 г.
Проспект Ветеранов
20 мин. на транспорте
Ленинградская обл., Ломоносовский район, пос. Новоселье, ул. Невская, д.4
44.78
2-к
3 этаж
Готовая отделка
Новый Питер - №119
Цена по запросу
Новый Питер
2-к № 119
Лот 3, Секция 3
Сдача в 4 кв. 2026 г.
Проспект Ветеранов
20 мин. на транспорте
Ленинградская обл., Ломоносовский район, пос. Новоселье, ул. Невская, д.4
63.38
2-к
4 этаж
Готовая отделка
Новый Питер - №689
Цена по запросу
Новый Питер
2-к № 689
Лот 4, Секция 10
Сдача в 4 кв. 2026 г.
Проспект Ветеранов
20 мин. на транспорте
Ленинградская обл., Ломоносовский район, пос. Новоселье, ул. Невская, д.4
59.7
2-к
2 этаж
Цена по запросу
Новый Питер
2-к № 361
Лот 4, Секция 6
Сдача в 4 кв. 2026 г.
Проспект Ветеранов
20 мин. на транспорте
Ленинградская обл., Ломоносовский район, пос. Новоселье, ул. Невская, д.4
61.78
2-к
2 этаж
Готовая отделка
Новый Питер - №230
Цена по запросу
Новый Питер
2-к № 230
Лот 3, Секция 5
Сдача в 4 кв. 2026 г.
Проспект Ветеранов
20 мин. на транспорте
Ленинградская обл., Ломоносовский район, пос. Новоселье, ул. Невская, д.4
58.38
2-к
3 этаж
Цена по запросу
Новый Питер
2-к № 508
Лот 3, Секция 10
Сдача в 4 кв. 2026 г.
Проспект Ветеранов
20 мин. на транспорте
Ленинградская обл., Ломоносовский район, пос. Новоселье, ул. Невская, д.4
57.97
2-к
2 этаж
Цена по запросу
Новый Питер
2-к № 89
Лот 1.1, Секция 2
Дом сдан
Проспект Ветеранов
20 мин. на транспорте
Ленинградская обл., Ломоносовский район, пос. Новоселье, ул. Невская, д.4
58
2-к
1 этаж
Цена по запросу
Новый Питер
2-к № 325
Лот 3, Секция 7
Сдача в 4 кв. 2026 г.
Проспект Ветеранов
20 мин. на транспорте
Ленинградская обл., Ломоносовский район, пос. Новоселье, ул. Невская, д.4
58.21
2-к
3 этаж
Цена по запросу
Новый Питер
3-к № 188
Лот 1.1, Секция 3
Дом сдан
Проспект Ветеранов
20 мин. на транспорте
Ленинградская обл., Ломоносовский район, пос. Новоселье, ул. Невская, д.4
92.7
3-к
1 этаж
Цена по запросу
Новый Питер
3-к № 190
Лот 1.1, Секция 3
Дом сдан
Проспект Ветеранов
20 мин. на транспорте
Ленинградская обл., Ломоносовский район, пос. Новоселье, ул. Невская, д.4
88
3-к
1 этаж
Цена по запросу
Новый Питер
3-к № 118
Лот 3, Секция 3
Сдача в 4 кв. 2026 г.
Проспект Ветеранов
20 мин. на транспорте
Ленинградская обл., Ломоносовский район, пос. Новоселье, ул. Невская, д.4
81.67
3-к
3 этаж
Цена по запросу
Новый Питер
3-к № 146
Лот 3, Секция 3
Сдача в 4 кв. 2026 г.
Проспект Ветеранов
20 мин. на транспорте
Ленинградская обл., Ломоносовский район, пос. Новоселье, ул. Невская, д.4
81.67
3-к
7 этаж
Цена по запросу
Новый Питер
3-к № 98
Лот 4, Секция 2
Сдача в 4 кв. 2026 г.
Проспект Ветеранов
20 мин. на транспорте
Ленинградская обл., Ломоносовский район, пос. Новоселье, ул. Невская, д.4
79.06
3-к
2 этаж
Цена по запросу
Новый Питер
3-к № 169
Лот 4, Секция 3
Сдача в 4 кв. 2026 г.
Проспект Ветеранов
20 мин. на транспорте
Ленинградская обл., Ломоносовский район, пос. Новоселье, ул. Невская, д.4
78.54
3-к
2 этаж
Цена по запросу
Новый Питер
3-к № 275
Лот 3, Секция 6
Сдача в 4 кв. 2026 г.
Проспект Ветеранов
20 мин. на транспорте
Ленинградская обл., Ломоносовский район, пос. Новоселье, ул. Невская, д.4
83.38
3-к
2 этаж
Цена по запросу
Новый Питер
3-к № 281
Лот 3, Секция 6
Сдача в 4 кв. 2026 г.
Проспект Ветеранов
20 мин. на транспорте
Ленинградская обл., Ломоносовский район, пос. Новоселье, ул. Невская, д.4
78.82
3-к
3 этаж